takeofficeなら掲載物件の仲介手数料は無料です

GSハイム新中野駅前

住所 東京都中野区本町4-44-14
交通 東京メトロ丸ノ内線新中野」 徒歩1分
竣工 1982年06月 構造 -
規模 - 耐震基準 -
床構造 - 空調設備 個別空調
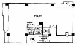
天井高 - 基準階面積 --
コンセント容量 - 施工会社

最新の募集状況や類似物件については、
こちらにお問い合わせください。

GSハイム新中野駅前 外観

外観

  • NOW PRINTING

    エントランス

内見やお見積りなどの各種お問い合わせ

全物件
仲介手数料無料
仲介から
入居工事まで
ワンストップで対応
経験豊富なスタッフが
スピード感をもって
対応

周辺での似た条件の物件

非公開物件 多数あり!

お問い合わせフォーム