takeofficeなら掲載物件の仲介手数料は無料です

ツナシマ第3ビル

住所 東京都中野区弥生町2-4-9
交通 東京メトロ丸ノ内線2中野新橋」 徒歩3分
竣工 1969年03月 構造 SRC+RC
規模 地上7階, 地下1階 耐震基準 新耐震基準
床構造 フリーアクセス 空調設備 個別空調
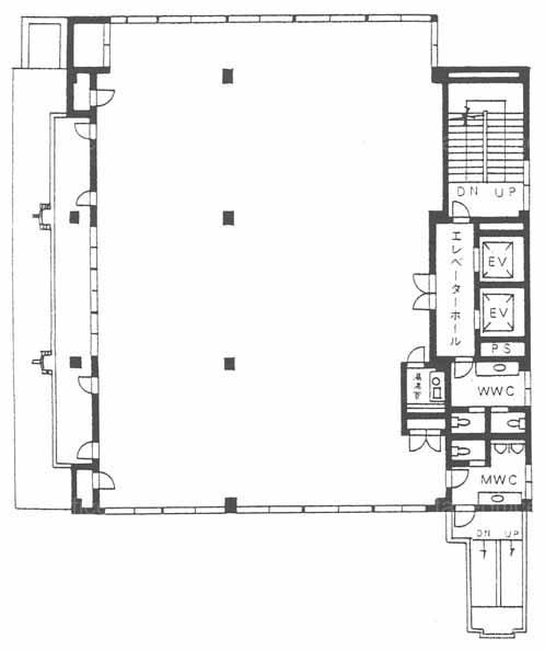
天井高 - 基準階面積 102.85坪(340m2)
コンセント容量 - 施工会社

最新の募集状況や類似物件については、
こちらにお問い合わせください。

ツナシマ第3ビル 外観

外観

  • NOW PRINTING

    エントランス

  • 2F

    2F

  • 6F

    6F

  • 7F

    7F

  • 3F

    3F

内見やお見積りなどの各種お問い合わせ

全物件
仲介手数料無料
仲介から
入居工事まで
ワンストップで対応
経験豊富なスタッフが
スピード感をもって
対応

周辺での似た条件の物件

非公開物件 多数あり!

お問い合わせフォーム