takeofficeなら掲載物件の仲介手数料は無料です

阿佐谷進和ビル

住所 東京都杉並区阿佐谷南3-7-3
交通 東京メトロ丸ノ内線南阿佐ヶ谷」 徒歩6分
JR中央線阿佐ヶ谷」 徒歩9分
竣工 1985年 月 構造 RC
規模 地上6階 耐震基準 新耐震基準
床構造 - 空調設備 -
天井高 - 基準階面積 --
コンセント容量 - 施工会社

最新の募集状況や類似物件については、
こちらにお問い合わせください。

NOW PRINTING

外観

  • NOW PRINTING

    エントランス

  • 1F

    1F

  • 2F

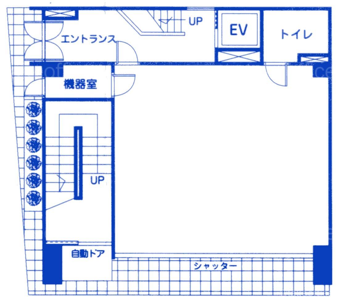
    2F

内見やお見積りなどの各種お問い合わせ

全物件
仲介手数料無料
仲介から
入居工事まで
ワンストップで対応
経験豊富なスタッフが
スピード感をもって
対応

周辺での似た条件の物件

非公開物件 多数あり!

お問い合わせフォーム