takeofficeなら掲載物件の仲介手数料は無料です

MS荻窪ビル

住所 東京都杉並区天沼3-5-4
交通 JR中央線荻窪」 徒歩4分
東京メトロ丸ノ内線荻窪」 徒歩4分
竣工 2008年04月 構造 鉄骨造
規模 地上4階 耐震基準 新耐震基準
床構造 フリーアクセス 75mm 空調設備 個別空調
天井高 2700mm 基準階面積 160.68坪(531.17m2)
コンセント容量 50VA/m2 施工会社 奥村組

最新の募集状況や類似物件については、
こちらにお問い合わせください。

MS荻窪ビル 外観

外観

  • NOW PRINTING

    エントランス

  • 2F

    2F

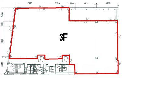
  • 3F

    3F

  • 4F

    4F

内見やお見積りなどの各種お問い合わせ

全物件
仲介手数料無料
仲介から
入居工事まで
ワンストップで対応
経験豊富なスタッフが
スピード感をもって
対応
非公開物件 多数あり!

お問い合わせフォーム