takeofficeなら掲載物件の仲介手数料は無料です

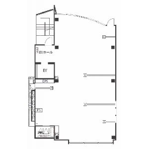
荻窪SGビル

住所 東京都杉並区上荻1-10-5
交通 JR中央線荻窪」 徒歩2分
竣工 2014年09月 構造 鉄骨造
規模 地上6階, 地下1階 耐震基準 -
床構造 - 空調設備 -
天井高 - 基準階面積 --
コンセント容量 - 施工会社

最新の募集状況や類似物件については、
こちらにお問い合わせください。

荻窪SGビル 外観

外観

  • 荻窪SGビル エントランス写真

    エントランス

内見やお見積りなどの各種お問い合わせ

全物件
仲介手数料無料
仲介から
入居工事まで
ワンストップで対応
経験豊富なスタッフが
スピード感をもって
対応

周辺での似た条件の物件

非公開物件 多数あり!

お問い合わせフォーム