takeofficeなら掲載物件の仲介手数料は無料です

スカイコート西荻窪第2

住所 東京都杉並区桃井4-4-2
交通 JR中央線西荻窪」 徒歩12分
西武新宿線上井草」 徒歩22分
竣工 1997年02月 構造 -
規模 地上5階, 地下1階 耐震基準 新耐震基準
床構造 フリーアクセス 50mm 空調設備 個別空調
天井高 - 基準階面積 --
コンセント容量 - 施工会社

最新の募集状況や類似物件については、
こちらにお問い合わせください。

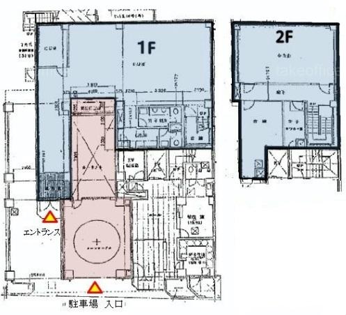
スカイコート西荻窪第2 外観

外観

  • スカイコート西荻窪第2 エントランス写真

    エントランス

内見やお見積りなどの各種お問い合わせ

全物件
仲介手数料無料
仲介から
入居工事まで
ワンストップで対応
経験豊富なスタッフが
スピード感をもって
対応

周辺での似た条件の物件

非公開物件 多数あり!

お問い合わせフォーム