takeofficeなら掲載物件の仲介手数料は無料です

藤澤ビルディング

住所 東京都杉並区荻窪4-30-16
交通 JR中央線荻窪」 徒歩4分
竣工 1987年11月 構造 SRC+RC
規模 地上17階, 地下3階 耐震基準 新耐震基準
床構造 フリーアクセス 70mm 空調設備 個別空調
天井高 2500mm 基準階面積 363.58坪(1201.92m2)
コンセント容量 - 施工会社

最新の募集状況や類似物件については、
こちらにお問い合わせください。

藤澤ビルディング 外観

外観

  • 藤澤ビルディング エントランス写真

    エントランス

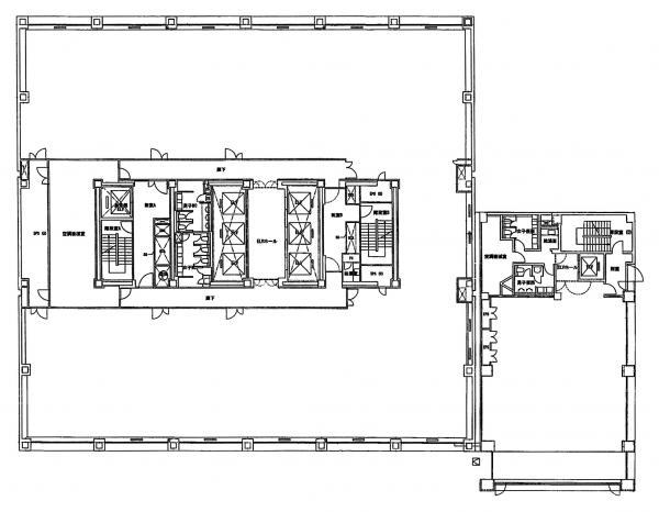
  • 基準階(2~5F)

    基準階(2~5F)

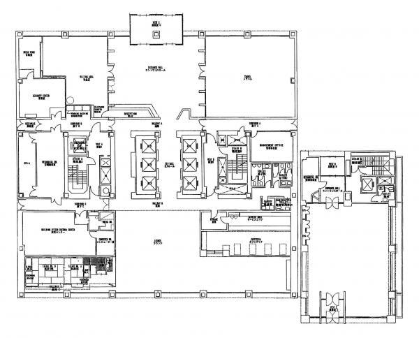
  • 1F

    1F

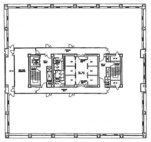
  • 7~17F

    7~17F

  • B1F

    B1F

内見やお見積りなどの各種お問い合わせ

全物件
仲介手数料無料
仲介から
入居工事まで
ワンストップで対応
経験豊富なスタッフが
スピード感をもって
対応

周辺での似た条件の物件

非公開物件 多数あり!

お問い合わせフォーム