takeofficeなら掲載物件の仲介手数料は無料です

第2豊富ビル

住所 東京都杉並区和泉1-35-14
交通 東京メトロ丸ノ内線2方南町」 徒歩9分
京王線代田橋」 徒歩12分
井の頭線明大前」 徒歩19分
竣工 1991年11月 構造 -
規模 地上4階, 地下1階 耐震基準 新耐震基準
床構造 フリーアクセス 空調設備 -
天井高 - 基準階面積 --
コンセント容量 - 施工会社

最新の募集状況や類似物件については、
こちらにお問い合わせください。

NOW PRINTING

外観

  • NOW PRINTING

    エントランス

  • 2F

    2F

  • 1F

    1F

  • 3F

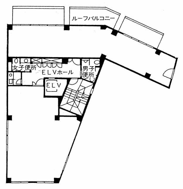
    3F

内見やお見積りなどの各種お問い合わせ

全物件
仲介手数料無料
仲介から
入居工事まで
ワンストップで対応
経験豊富なスタッフが
スピード感をもって
対応

周辺での似た条件の物件

非公開物件 多数あり!

お問い合わせフォーム