takeofficeなら掲載物件の仲介手数料は無料です

甘酒屋ビル

住所 東京都杉並区和泉2-7-1
交通 京王線明大前」 徒歩6分
京王線代田橋」 徒歩9分
井の頭線東松原」 徒歩13分
竣工 1992年07月 構造 -
規模 地上6階, 地下1階 耐震基準 新耐震基準
床構造 フリーアクセス 空調設備 個別空調
天井高 2400mm 基準階面積 100.19坪(331.21m2)
コンセント容量 - 施工会社

最新の募集状況や類似物件については、
こちらにお問い合わせください。

甘酒屋ビル 外観

外観

  • 甘酒屋ビル エントランス写真

    エントランス

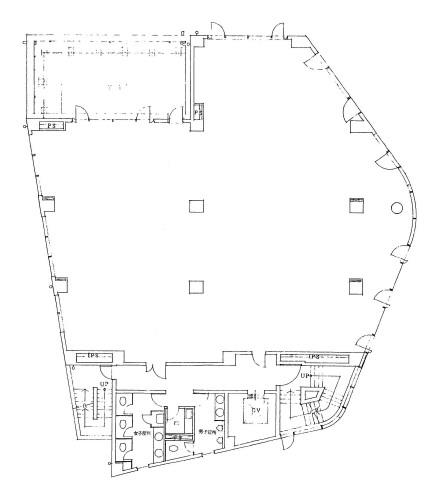
  • 2F

    2F

  • 1F

    1F

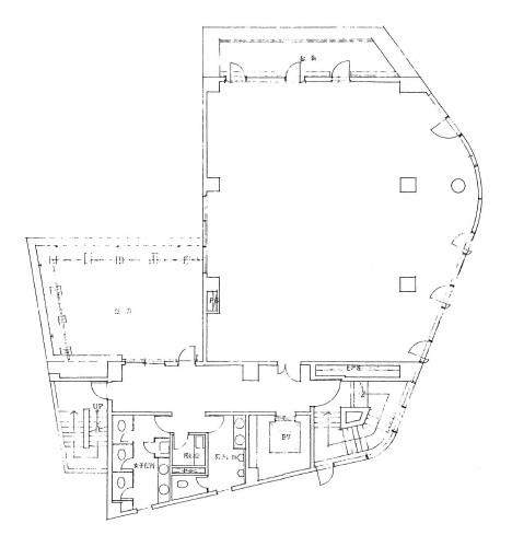
  • 3F

    3F

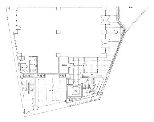
  • 4F

    4F

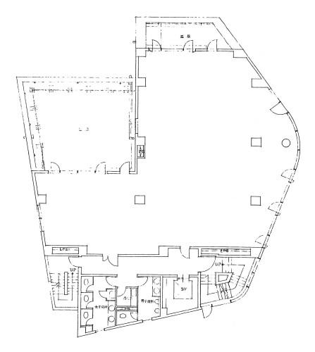
  • 5F

    5F

  • 6F

    6F

内見やお見積りなどの各種お問い合わせ

全物件
仲介手数料無料
仲介から
入居工事まで
ワンストップで対応
経験豊富なスタッフが
スピード感をもって
対応

周辺での似た条件の物件

非公開物件 多数あり!

お問い合わせフォーム