takeofficeなら掲載物件の仲介手数料は無料です

LSビル

住所 東京都豊島区駒込1-37-9
交通 JR山手線駒込」 徒歩2分
東京メトロ南北線駒込」 徒歩2分
竣工 1998年03月 構造 SRC
規模 地上7階 耐震基準 新耐震基準
床構造 フリーアクセス 空調設備 個別空調
天井高 2600mm 基準階面積 43.31坪(143.17m2)
コンセント容量 - 施工会社

最新の募集状況や類似物件については、
こちらにお問い合わせください。

LSビル 外観

外観

  • LSビル エントランス写真

    エントランス

  • 基準階

    基準階

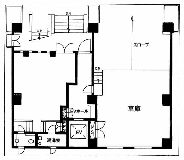
  • 1F

    1F

建物パンフレット

建物パンフレットは作成時点のものであり、また計画段階のものも含まれる為、実際とは異なる場合がございます。

内見やお見積りなどの各種お問い合わせ

全物件
仲介手数料無料
仲介から
入居工事まで
ワンストップで対応
経験豊富なスタッフが
スピード感をもって
対応

周辺での似た条件の物件

非公開物件 多数あり!

お問い合わせフォーム