takeofficeなら掲載物件の仲介手数料は無料です

高木ビル

住所 東京都豊島区巣鴨1-20-10
交通 JR山手線巣鴨」 徒歩4分
都営三田線巣鴨」 徒歩4分
竣工 1991年08月 構造 RC
規模 地上10階 耐震基準 新耐震基準
床構造 - 空調設備 個別空調
天井高 2450mm 基準階面積 45.53坪(150.51m2)
コンセント容量 - 施工会社

最新の募集状況や類似物件については、
こちらにお問い合わせください。

高木ビル 外観

外観

  • NOW PRINTING

    エントランス

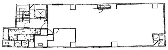
  • 基準階(2~8F)

    基準階(2~8F)

建物パンフレット

建物パンフレットは作成時点のものであり、また計画段階のものも含まれる為、実際とは異なる場合がございます。

内見やお見積りなどの各種お問い合わせ

全物件
仲介手数料無料
仲介から
入居工事まで
ワンストップで対応
経験豊富なスタッフが
スピード感をもって
対応

周辺での似た条件の物件

非公開物件 多数あり!

お問い合わせフォーム