takeofficeなら掲載物件の仲介手数料は無料です

アルカディア篠

住所 東京都豊島区巣鴨3-31-2
交通 JR山手線巣鴨」 徒歩3分
都電荒川線庚申塚」 徒歩12分
竣工 1990年04月 構造 RC
規模 地上7階, 地下1階 耐震基準 新耐震基準
床構造 - 空調設備 -
天井高 - 基準階面積 --
コンセント容量 - 施工会社

最新の募集状況や類似物件については、
こちらにお問い合わせください。

NOW PRINTING

外観

  • NOW PRINTING

    エントランス

  • 基準階(3~4F)

    基準階(3~4F)

  • 1F

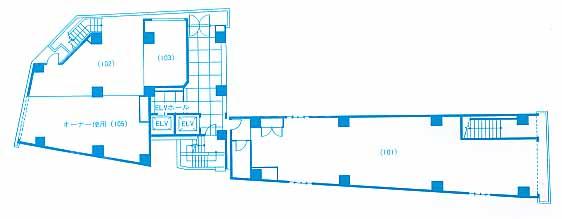
    1F

  • 2F

    2F

  • 5F

    5F

  • 6~7F

    6~7F

内見やお見積りなどの各種お問い合わせ

全物件
仲介手数料無料
仲介から
入居工事まで
ワンストップで対応
経験豊富なスタッフが
スピード感をもって
対応

周辺での似た条件の物件

非公開物件 多数あり!

お問い合わせフォーム