takeofficeなら掲載物件の仲介手数料は無料です

ヤマモト大塚ビル

住所 東京都豊島区南大塚2-39-7
交通 JR山手線大塚」 徒歩5分
都電荒川線大塚駅前」 徒歩4分
東京メトロ丸ノ内線新大塚」 徒歩5分
竣工 1985年 構造 SRC
規模 地上7階, 地下1階 耐震基準 新耐震基準
床構造 - 空調設備 個別空調
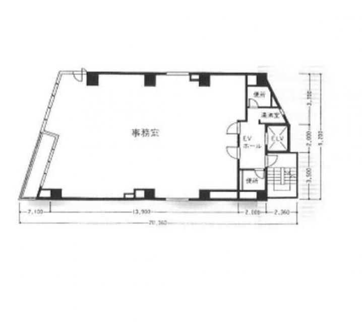
天井高 2500mm 基準階面積 44.27坪(146.35m2)
コンセント容量 - 施工会社

最新の募集状況や類似物件については、
こちらにお問い合わせください。

ヤマモト大塚ビル 外観

外観

  • ヤマモト大塚ビル エントランス写真

    エントランス

  • 基準階

    基準階

内見やお見積りなどの各種お問い合わせ

全物件
仲介手数料無料
仲介から
入居工事まで
ワンストップで対応
経験豊富なスタッフが
スピード感をもって
対応

周辺での似た条件の物件

非公開物件 多数あり!

お問い合わせフォーム