takeofficeなら掲載物件の仲介手数料は無料です

南大塚エースビル

住所 東京都豊島区南大塚3-34-6
交通 JR山手線大塚」 徒歩1分
都電荒川線大塚駅前」 徒歩3分
都電荒川線向原」 徒歩5分
竣工 1982年09月 構造 SRC
規模 地上8階 耐震基準 新耐震基準
床構造 - 空調設備 -
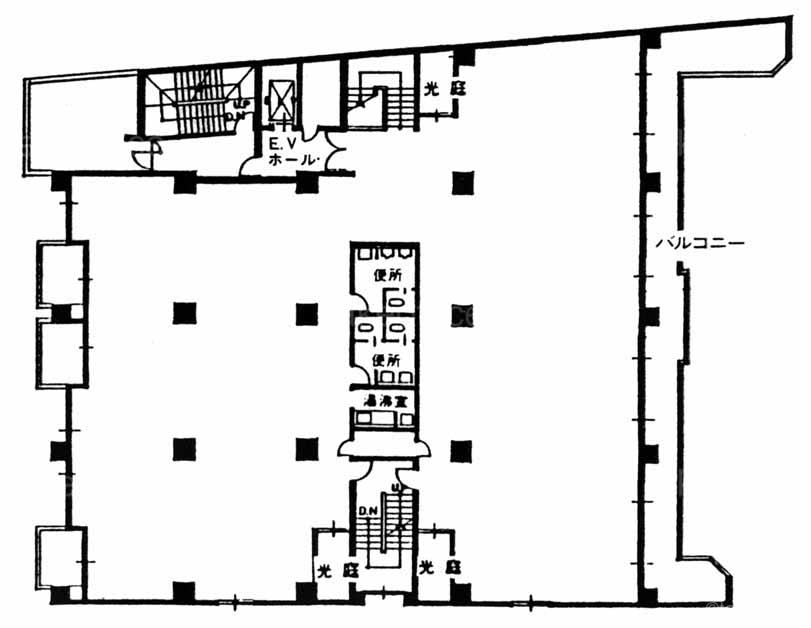
天井高 2475mm 基準階面積 129坪(426m2)
コンセント容量 - 施工会社

最新の募集状況や類似物件については、
こちらにお問い合わせください。

南大塚エースビル 外観

外観

  • NOW PRINTING

    エントランス

  • 2F

    2F

  • 3F

    3F

内見やお見積りなどの各種お問い合わせ

全物件
仲介手数料無料
仲介から
入居工事まで
ワンストップで対応
経験豊富なスタッフが
スピード感をもって
対応

周辺での似た条件の物件

非公開物件 多数あり!

お問い合わせフォーム