takeofficeなら掲載物件の仲介手数料は無料です

オーク大塚ビル

住所 東京都豊島区北大塚1-13-4
交通 JR山手線大塚」 徒歩3分
都電荒川線大塚駅前」 徒歩4分
東京メトロ丸ノ内線新大塚」 徒歩9分
竣工 1985年03月 構造 RC
規模 地上6階 耐震基準 新耐震基準
床構造 フリーアクセス 空調設備 フロア別空調
天井高 2500mm 基準階面積 263坪(869m2)
コンセント容量 - 施工会社

最新の募集状況や類似物件については、
こちらにお問い合わせください。

オーク大塚ビル 外観

外観

  • NOW PRINTING

    エントランス

  • 基準階(2~6F)

    基準階(2~6F)

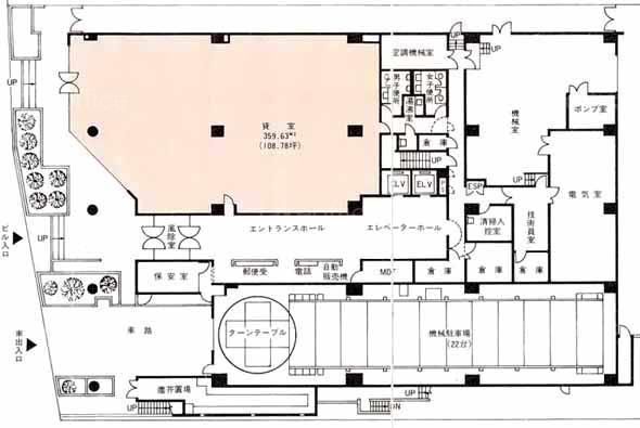
  • 1F

    1F

内見やお見積りなどの各種お問い合わせ

全物件
仲介手数料無料
仲介から
入居工事まで
ワンストップで対応
経験豊富なスタッフが
スピード感をもって
対応

周辺での似た条件の物件

非公開物件 多数あり!

お問い合わせフォーム