takeofficeなら掲載物件の仲介手数料は無料です

互栄大塚ビル

住所 東京都豊島区北大塚2-9-7
交通 東京メトロ丸ノ内線池袋」 徒歩2分
JR山手線大塚」 徒歩3分
都電荒川線巣鴨新田」 徒歩4分
竣工 1970年04月 構造 RC
規模 地上7階 耐震基準 旧耐震基準
床構造 フリーアクセス 空調設備 個別空調
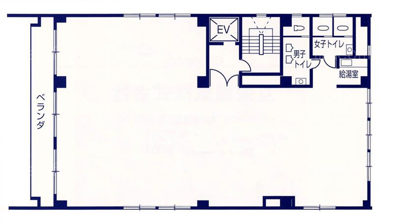
天井高 2400mm 基準階面積 45.5坪(150.41m2)
コンセント容量 - 施工会社

最新の募集状況や類似物件については、
こちらにお問い合わせください。

互栄大塚ビル 外観

外観

  • 互栄大塚ビル エントランス写真

    エントランス

  • 4F

    4F

  • 1F

    1F

  • 6F

    6F

  • 7F

    7F

内見やお見積りなどの各種お問い合わせ

全物件
仲介手数料無料
仲介から
入居工事まで
ワンストップで対応
経験豊富なスタッフが
スピード感をもって
対応

周辺での似た条件の物件

非公開物件 多数あり!

お問い合わせフォーム