takeofficeなら掲載物件の仲介手数料は無料です

バロックコート池袋

住所 東京都豊島区東池袋1-31-1
交通 JR山手線池袋」 徒歩5分
東京メトロ有楽町線東池袋」 徒歩6分
竣工 1967年11月 構造 SRC
規模 地上8階, 地下1階 耐震基準 -
床構造 フリーアクセス 空調設備 個別空調
天井高 2380mm 基準階面積 38.79坪(128.23m2)
コンセント容量 - 施工会社

最新の募集状況や類似物件については、
こちらにお問い合わせください。

バロックコート池袋 外観

外観

  • バロックコート池袋 エントランス写真

    エントランス

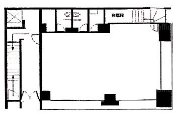
  • 基準階(4~8F)

    基準階(4~8F)

  • 1F

    1F

  • 2~3F

    2~3F

内見やお見積りなどの各種お問い合わせ

全物件
仲介手数料無料
仲介から
入居工事まで
ワンストップで対応
経験豊富なスタッフが
スピード感をもって
対応

周辺での似た条件の物件

非公開物件 多数あり!

お問い合わせフォーム