takeofficeなら掲載物件の仲介手数料は無料です

いちご池袋イーストビル

住所 東京都豊島区東池袋2-23-2
交通 JR山手線大塚」 徒歩8分
東京メトロ有楽町線東池袋」 徒歩8分
東京メトロ丸ノ内線新大塚」 徒歩8分
竣工 1993年06月 構造 SRC
規模 地上8階 耐震基準 新耐震基準
床構造 フリーアクセス 空調設備 個別空調
天井高 - 基準階面積 141.57坪(468m2)
コンセント容量 30VA/m2 施工会社

最新の募集状況や類似物件については、
こちらにお問い合わせください。

いちご池袋イーストビル 外観

外観

  • NOW PRINTING

    エントランス

  • 基準階(2~6F)

    基準階(2~6F)

  • 1F

    1F

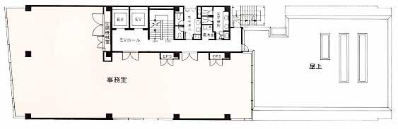
  • 7~8F

    7~8F

内見やお見積りなどの各種お問い合わせ

全物件
仲介手数料無料
仲介から
入居工事まで
ワンストップで対応
経験豊富なスタッフが
スピード感をもって
対応

周辺での似た条件の物件

非公開物件 多数あり!

お問い合わせフォーム