takeofficeなら掲載物件の仲介手数料は無料です

東池袋センタービル

住所 東京都豊島区東池袋4-41-24
交通 JR山手線大塚」 徒歩7分
JR山手線池袋」 徒歩12分
東京メトロ丸ノ内線新大塚」 徒歩7分
竣工 1991年11月 構造 SRC
規模 地上8階, 地下1階 耐震基準 新耐震基準
床構造 フリーアクセス 70mm 空調設備 個別空調
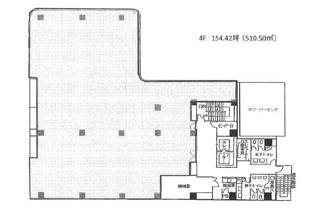
天井高 2480mm 基準階面積 154.42坪(510.48m2)
コンセント容量 - 施工会社 三菱建設

最新の募集状況や類似物件については、
こちらにお問い合わせください。

東池袋センタービル 外観

外観

建物パンフレット

建物パンフレットは作成時点のものであり、また計画段階のものも含まれる為、実際とは異なる場合がございます。

内見やお見積りなどの各種お問い合わせ

全物件
仲介手数料無料
仲介から
入居工事まで
ワンストップで対応
経験豊富なスタッフが
スピード感をもって
対応

周辺での似た条件の物件

非公開物件 多数あり!

お問い合わせフォーム