takeofficeなら掲載物件の仲介手数料は無料です

東池袋ISKビル

住所 東京都豊島区東池袋1-23-8
交通 JR山手線池袋」 徒歩3分
東京メトロ有楽町線東池袋」 徒歩4分
都電荒川線雑司ヶ谷」 徒歩9分
竣工 2009年04月 構造 鉄骨造
規模 地上8階 耐震基準 新耐震基準
床構造 フリーアクセス 60mm 空調設備 個別空調
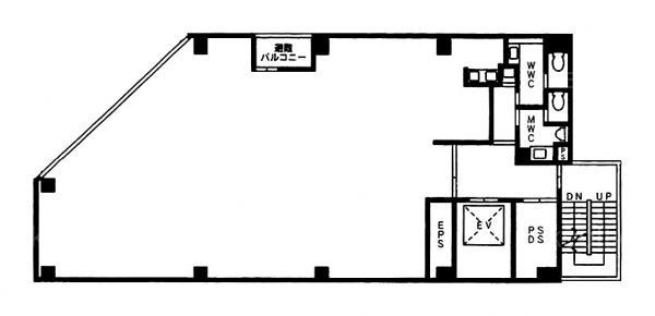
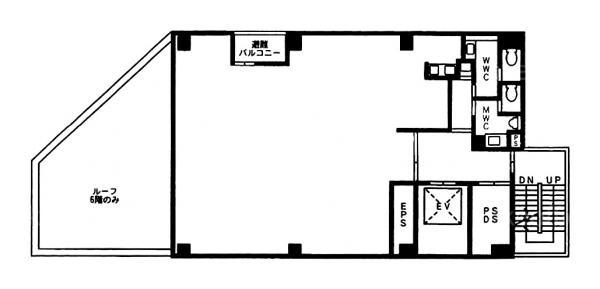
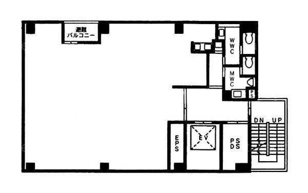
天井高 2540mm 基準階面積 50.01坪(165.32m2)
コンセント容量 - 施工会社 東急ホームズ

最新の募集状況や類似物件については、
こちらにお問い合わせください。

東池袋ISKビル 外観

外観

建物パンフレット

建物パンフレットは作成時点のものであり、また計画段階のものも含まれる為、実際とは異なる場合がございます。

内見やお見積りなどの各種お問い合わせ

全物件
仲介手数料無料
仲介から
入居工事まで
ワンストップで対応
経験豊富なスタッフが
スピード感をもって
対応

周辺での似た条件の物件

非公開物件 多数あり!

お問い合わせフォーム