takeofficeなら掲載物件の仲介手数料は無料です

A-PLACE池袋

住所 東京都豊島区南池袋1-16-22
交通 JR山手線池袋」 徒歩4分
竣工 2011年10月 構造 鉄骨造
規模 地上7階, 地下1階 耐震基準 新耐震基準
床構造 フリーアクセス 100mm 空調設備 個別空調
天井高 2700mm 基準階面積 156.71坪(518.05m2)
コンセント容量 - 施工会社 大林組

最新の募集状況や類似物件については、
こちらにお問い合わせください。

A-PLACE池袋 外観

外観

  • A-PLACE池袋 エントランス写真

    エントランス

  • 基準階

    基準階

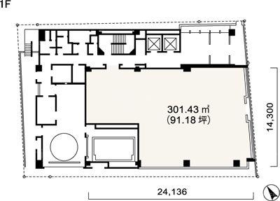
  • 1F

    1F

建物パンフレット

建物パンフレットは作成時点のものであり、また計画段階のものも含まれる為、実際とは異なる場合がございます。

内見やお見積りなどの各種お問い合わせ

全物件
仲介手数料無料
仲介から
入居工事まで
ワンストップで対応
経験豊富なスタッフが
スピード感をもって
対応

周辺での似た条件の物件

非公開物件 多数あり!

お問い合わせフォーム