takeofficeなら掲載物件の仲介手数料は無料です

池袋三品ビル

住所 東京都豊島区南池袋1-18-1
交通 JR山手線池袋」 徒歩2分
東京メトロ丸ノ内線池袋」 徒歩2分
池袋線池袋」 徒歩2分
竣工 1990年08月 構造 SRC
規模 地上9階, 地下1階 耐震基準 新耐震基準
床構造 フリーアクセス 空調設備 個別空調
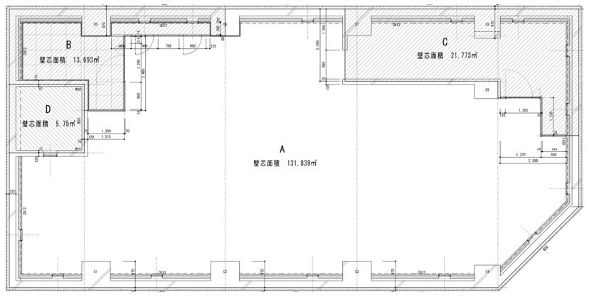
天井高 2500mm 基準階面積 47.96坪(158.55m2)
コンセント容量 - 施工会社

最新の募集状況や類似物件については、
こちらにお問い合わせください。

池袋三品ビル 外観

外観

  • 池袋三品ビル エントランス写真

    エントランス

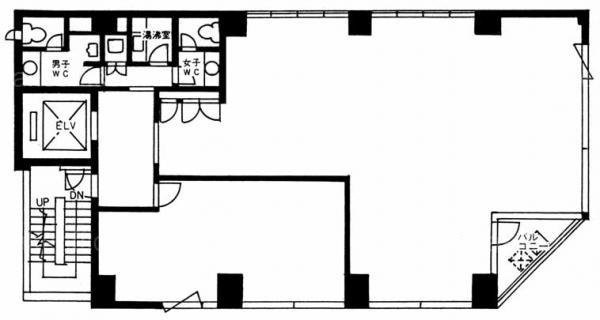
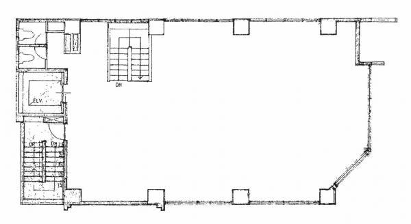
  • 基準階(3~8F)

    基準階(3~8F)

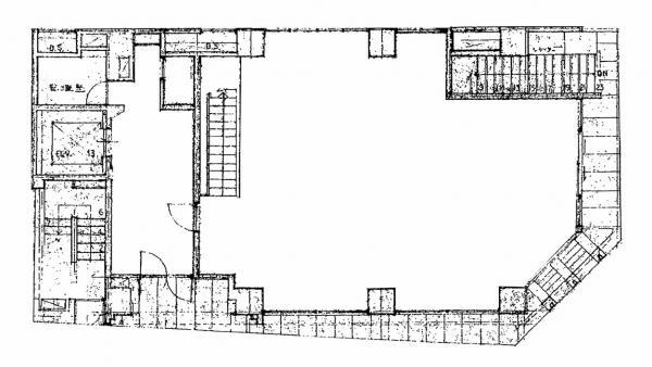
  • 1F

    1F

  • 2F

    2F

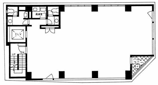
  • 9F

    9F

  • B1F

    B1F

内見やお見積りなどの各種お問い合わせ

全物件
仲介手数料無料
仲介から
入居工事まで
ワンストップで対応
経験豊富なスタッフが
スピード感をもって
対応

周辺での似た条件の物件

非公開物件 多数あり!

お問い合わせフォーム