takeofficeなら掲載物件の仲介手数料は無料です

南池袋ビル

住所 東京都豊島区南池袋2-19-4
交通 JR山手線池袋」 徒歩5分
東京メトロ有楽町線東池袋」 徒歩6分
都電荒川線雑司ヶ谷」 徒歩7分
竣工 1987年10月 構造 RC
規模 地上6階 耐震基準 新耐震基準
床構造 フリーアクセス 空調設備 個別空調
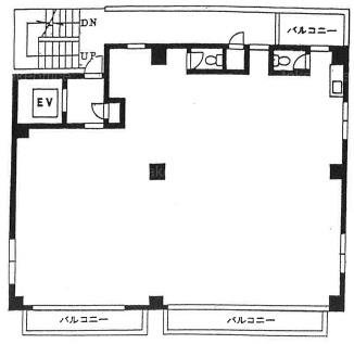
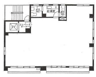
天井高 - 基準階面積 43.84坪(144.93m2)
コンセント容量 - 施工会社

最新の募集状況や類似物件については、
こちらにお問い合わせください。

南池袋ビル 外観

外観

  • 南池袋ビル エントランス写真

    エントランス

  • 5F

    5F

  • 6F

    6F

内見やお見積りなどの各種お問い合わせ

全物件
仲介手数料無料
仲介から
入居工事まで
ワンストップで対応
経験豊富なスタッフが
スピード感をもって
対応

周辺での似た条件の物件

非公開物件 多数あり!

お問い合わせフォーム