takeofficeなら掲載物件の仲介手数料は無料です

アイアンドイー池袋ビル

住所 東京都豊島区南池袋2-26-5
交通 JR山手線池袋」 徒歩5分
東京メトロ有楽町線池袋」 徒歩5分
池袋線池袋」 徒歩5分
竣工 1975年02月 構造 SRC
規模 地上9階, 地下3階 耐震基準 耐震診断書有
床構造 フリーアクセス 50mm 空調設備 個別空調
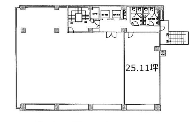
天井高 2340mm 基準階面積 121坪(402m2)
コンセント容量 - 施工会社

最新の募集状況や類似物件については、
こちらにお問い合わせください。

アイアンドイー池袋ビル 外観

外観

  • アイアンドイー池袋ビル エントランス写真

    エントランス

内見やお見積りなどの各種お問い合わせ

全物件
仲介手数料無料
仲介から
入居工事まで
ワンストップで対応
経験豊富なスタッフが
スピード感をもって
対応

周辺での似た条件の物件

非公開物件 多数あり!

お問い合わせフォーム