takeofficeなら掲載物件の仲介手数料は無料です

朝日生命南池袋ビル

住所 東京都豊島区南池袋2-30-17
交通 東京メトロ有楽町線東池袋」 徒歩4分
都電荒川線雑司ヶ谷」 徒歩5分
JR山手線池袋」 徒歩10分
竣工 1991年02月 構造 SRC
規模 地上8階 耐震基準 新耐震基準
床構造 3WAY 空調設備 個別空調
天井高 2600mm 基準階面積 104.07坪(344.03m2)
コンセント容量 60VA/m2 施工会社

最新の募集状況や類似物件については、
こちらにお問い合わせください。

朝日生命南池袋ビル 外観

外観

  • NOW PRINTING

    エントランス

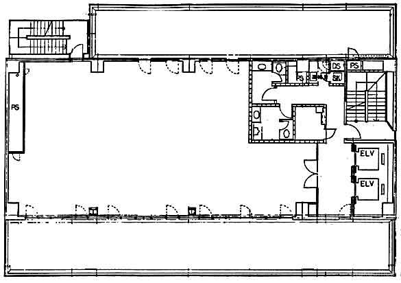
  • 基準階

    基準階

  • 1F

    1F

  • 2F

    2F

  • 5~6F

    5~6F

  • 7F

    7F

内見やお見積りなどの各種お問い合わせ

全物件
仲介手数料無料
仲介から
入居工事まで
ワンストップで対応
経験豊富なスタッフが
スピード感をもって
対応

周辺での似た条件の物件

非公開物件 多数あり!

お問い合わせフォーム