takeofficeなら掲載物件の仲介手数料は無料です

KDX高田馬場ビル

住所 東京都豊島区高田3-14-29
交通 JR山手線高田馬場」 徒歩3分
東京メトロ東西線高田馬場」 徒歩3分
西武新宿線高田馬場」 徒歩3分
竣工 1989年10月 構造 SRC
規模 地上7階, 地下2階 耐震基準 新耐震基準
床構造 フリーアクセス 40mm 空調設備 個別空調
天井高 2400mm 基準階面積 --
コンセント容量 - 施工会社

最新の募集状況や類似物件については、
こちらにお問い合わせください。

KDX高田馬場ビル 外観

外観

  • KDX高田馬場ビル エントランス写真

    エントランス

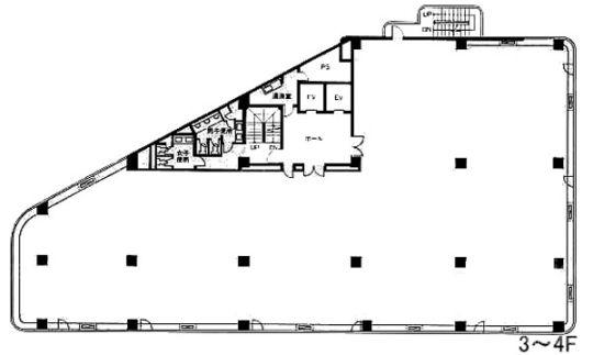
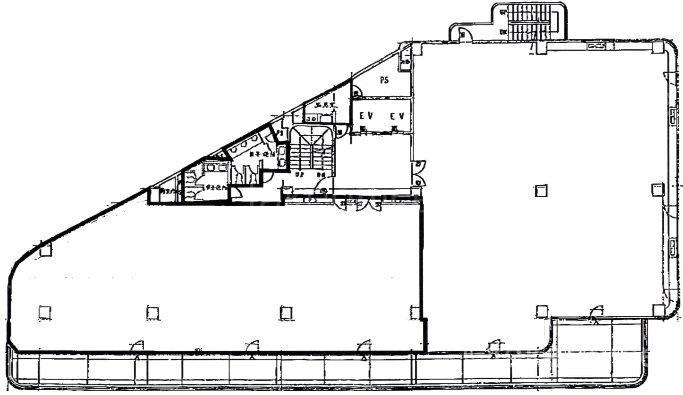
  • 6F

    6F

内見やお見積りなどの各種お問い合わせ

全物件
仲介手数料無料
仲介から
入居工事まで
ワンストップで対応
経験豊富なスタッフが
スピード感をもって
対応

周辺での似た条件の物件

非公開物件 多数あり!

お問い合わせフォーム