takeofficeなら掲載物件の仲介手数料は無料です

ウエスト1

住所 東京都豊島区西池袋1-2-2
交通 JR山手線池袋」 徒歩3分
竣工 1989年02月 構造 SRC
規模 地上9階 耐震基準 新耐震基準
床構造 - 空調設備 個別空調
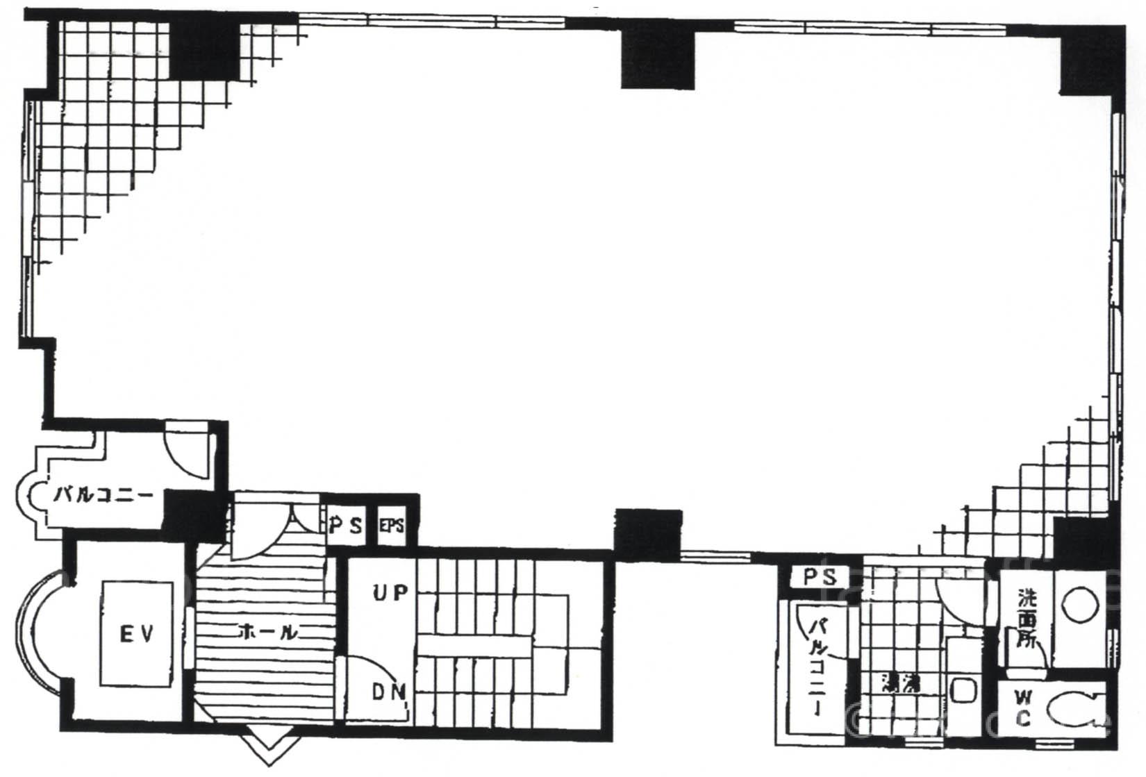
天井高 - 基準階面積 31.25坪(103.31m2)
コンセント容量 - 施工会社

最新の募集状況や類似物件については、
こちらにお問い合わせください。

ウエスト1 外観

外観

  • NOW PRINTING

    エントランス

  • 基準階

    基準階

  • 6F

    6F

内見やお見積りなどの各種お問い合わせ

全物件
仲介手数料無料
仲介から
入居工事まで
ワンストップで対応
経験豊富なスタッフが
スピード感をもって
対応

周辺での似た条件の物件

非公開物件 多数あり!

お問い合わせフォーム