takeofficeなら掲載物件の仲介手数料は無料です

西池袋第一生命ビルディング

住所 東京都豊島区池袋2-40-12
交通 JR山手線池袋」 徒歩7分
東京メトロ丸ノ内線池袋」 徒歩7分
池袋線池袋」 徒歩7分
竣工 1991年09月 構造 SRC
規模 地上10階 耐震基準 新耐震基準
床構造 - 空調設備 個別空調
天井高 2500mm 基準階面積 36.42坪(120.4m2)
コンセント容量 26VA/m2 施工会社

最新の募集状況や類似物件については、
こちらにお問い合わせください。

西池袋第一生命ビルディング 外観

外観

  • NOW PRINTING

    エントランス

  • 基準階(3~10F)

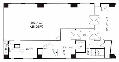
    基準階(3~10F)

  • 1F

    1F

建物パンフレット

建物パンフレットは作成時点のものであり、また計画段階のものも含まれる為、実際とは異なる場合がございます。

内見やお見積りなどの各種お問い合わせ

全物件
仲介手数料無料
仲介から
入居工事まで
ワンストップで対応
経験豊富なスタッフが
スピード感をもって
対応

周辺での似た条件の物件

非公開物件 多数あり!

お問い合わせフォーム