takeofficeなら掲載物件の仲介手数料は無料です

池袋デュープレックスビズ

住所 東京都豊島区池袋2-40-13
交通 東京メトロ有楽町線池袋」 徒歩3分
JR山手線池袋」 徒歩5分
竣工 2008年03月 構造 -
規模 地上14階, 地下1階 耐震基準 新耐震基準
床構造 フリーアクセス 100mm 空調設備 個別空調
天井高 2700mm 基準階面積 95.36坪(315.24m2)
コンセント容量 60VA/m2 施工会社 大成建設

最新の募集状況や類似物件については、
こちらにお問い合わせください。

池袋デュープレックスビズ 外観

外観

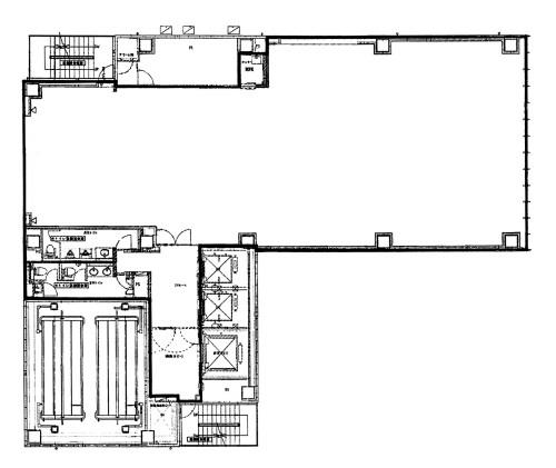
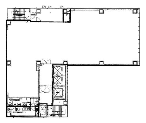
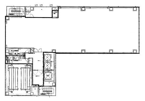
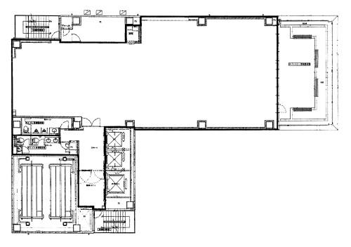
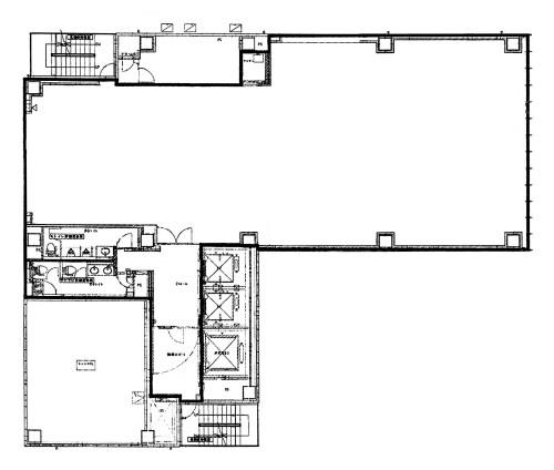
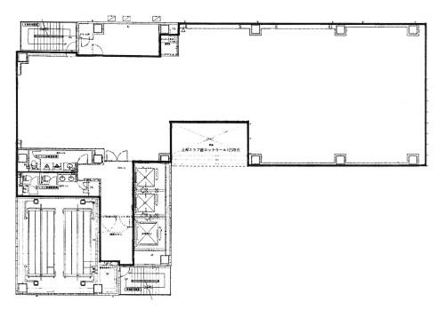
建物パンフレット

建物パンフレットは作成時点のものであり、また計画段階のものも含まれる為、実際とは異なる場合がございます。

内見やお見積りなどの各種お問い合わせ

全物件
仲介手数料無料
仲介から
入居工事まで
ワンストップで対応
経験豊富なスタッフが
スピード感をもって
対応

周辺での似た条件の物件

非公開物件 多数あり!

お問い合わせフォーム