takeofficeなら掲載物件の仲介手数料は無料です

NH西池袋ビル

住所 東京都豊島区高松1-10-2
交通 東京メトロ有楽町線要町」 徒歩4分
JR山手線池袋」 徒歩15分
東京メトロ丸ノ内線池袋」 徒歩15分
竣工 2002年06月 構造 SRC
規模 地上8階, 地下0階 耐震基準 新耐震基準
床構造 フリーアクセス 100mm 空調設備 個別空調
天井高 2700mm 基準階面積 --
コンセント容量 - 施工会社

最新の募集状況や類似物件については、
こちらにお問い合わせください。

NH西池袋ビル 外観

外観

  • NOW PRINTING

    エントランス

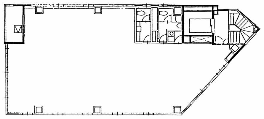
  • 5~7F

    5~7F

内見やお見積りなどの各種お問い合わせ

全物件
仲介手数料無料
仲介から
入居工事まで
ワンストップで対応
経験豊富なスタッフが
スピード感をもって
対応

周辺での似た条件の物件

非公開物件 多数あり!

お問い合わせフォーム