takeofficeなら掲載物件の仲介手数料は無料です

豊島8丁目ビル(旧:東京シンコールビル)

住所 東京都北区豊島8-4-1
交通 東京メトロ南北線王子神谷」 徒歩6分
竣工 1990年04月 構造 RC
規模 地上5階 耐震基準 新耐震基準
床構造 フリーアクセス 空調設備 個別空調
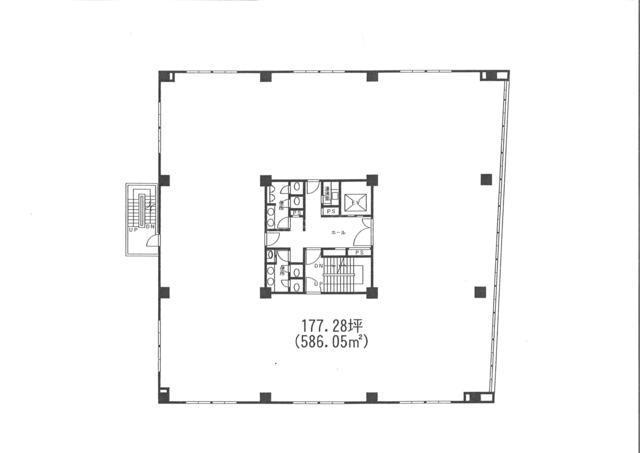
天井高 - 基準階面積 177.28坪(586.05m2)
コンセント容量 - 施工会社

最新の募集状況や類似物件については、
こちらにお問い合わせください。

豊島8丁目ビル(旧:東京シンコールビル) 外観

外観

  • NOW PRINTING

    エントランス

内見やお見積りなどの各種お問い合わせ

全物件
仲介手数料無料
仲介から
入居工事まで
ワンストップで対応
経験豊富なスタッフが
スピード感をもって
対応
非公開物件 多数あり!

お問い合わせフォーム