takeofficeなら掲載物件の仲介手数料は無料です

滝野川6丁目一括貸ビル

住所 東京都北区滝野川6-48-9
交通 JR埼京線板橋」 徒歩6分
都営三田線新板橋」 徒歩6分
都営三田線西巣鴨」 徒歩8分
竣工 1985年10月 構造 RC
規模 地上3階, 地下0階 耐震基準 新耐震基準
床構造 フリーアクセス 空調設備 -
天井高 - 基準階面積 48.1坪(159m2)
コンセント容量 - 施工会社

最新の募集状況や類似物件については、
こちらにお問い合わせください。

NOW PRINTING

外観

  • NOW PRINTING

    エントランス

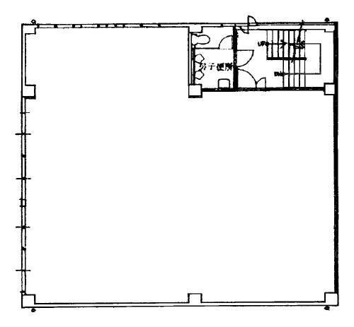
  • 2F

    2F

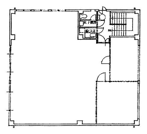
  • 1F

    1F

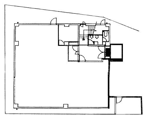
  • 3F

    3F

内見やお見積りなどの各種お問い合わせ

全物件
仲介手数料無料
仲介から
入居工事まで
ワンストップで対応
経験豊富なスタッフが
スピード感をもって
対応
非公開物件 多数あり!

お問い合わせフォーム