takeofficeなら掲載物件の仲介手数料は無料です

セキネビル

住所 東京都北区赤羽2-16-3
交通 JR京浜東北線赤羽」 徒歩2分
竣工 1992年06月 構造 SRC
規模 地上7階, 地下2階 耐震基準 新耐震基準
床構造 フリーアクセス 50mm 空調設備 個別空調
天井高 - 基準階面積 --
コンセント容量 - 施工会社

最新の募集状況や類似物件については、
こちらにお問い合わせください。

セキネビル 外観

外観

  • NOW PRINTING

    エントランス

  • 基準階(3~5F)

    基準階(3~5F)

  • 1F

    1F

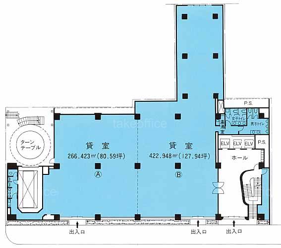
  • 2F

    2F

  • 6F

    6F

内見やお見積りなどの各種お問い合わせ

全物件
仲介手数料無料
仲介から
入居工事まで
ワンストップで対応
経験豊富なスタッフが
スピード感をもって
対応

周辺での似た条件の物件

非公開物件 多数あり!

お問い合わせフォーム