takeofficeなら掲載物件の仲介手数料は無料です

NNビル

住所 東京都荒川区東日暮里5-41-2
交通 JR山手線日暮里」 徒歩4分
京成本線日暮里」 徒歩4分
竣工 1990年12月 構造 SRC
規模 地上9階 耐震基準 新耐震基準
床構造 フリーアクセス 空調設備 個別空調
天井高 - 基準階面積 58.76坪(194.25m2)
コンセント容量 - 施工会社

最新の募集状況や類似物件については、
こちらにお問い合わせください。

NNビル 外観

外観

  • NNビル エントランス写真

    エントランス

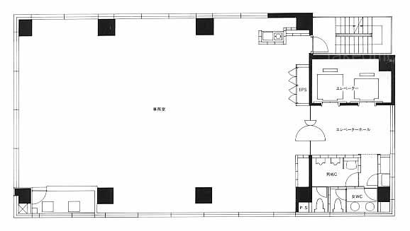
  • 基準階(2~9F)

    基準階(2~9F)

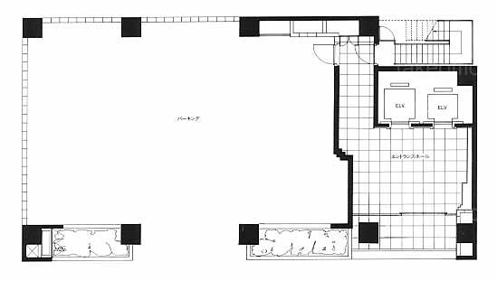
  • 1F

    1F

内見やお見積りなどの各種お問い合わせ

全物件
仲介手数料無料
仲介から
入居工事まで
ワンストップで対応
経験豊富なスタッフが
スピード感をもって
対応
非公開物件 多数あり!

お問い合わせフォーム