takeofficeなら掲載物件の仲介手数料は無料です

静屋ビル

住所 東京都荒川区東日暮里5-51-11
交通 JR山手線日暮里」 徒歩1分
京成本線日暮里」 徒歩1分
竣工 1989年07月 構造 SRC
規模 地上11階, 地下1階 耐震基準 新耐震基準
床構造 - 空調設備 個別空調
天井高 2350mm 基準階面積 58.64坪(193.85m2)
コンセント容量 - 施工会社

最新の募集状況や類似物件については、
こちらにお問い合わせください。

静屋ビル 外観

外観

  • 静屋ビル エントランス写真

    エントランス

  • 4F~8F

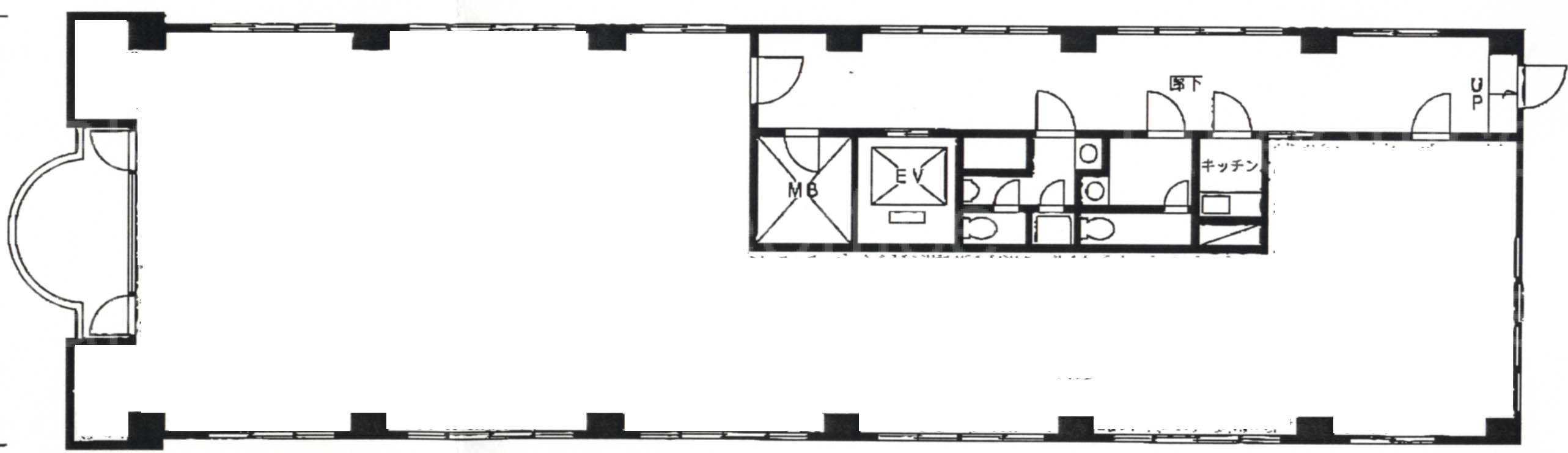
    4F~8F

  • 3F

    3F

内見やお見積りなどの各種お問い合わせ

全物件
仲介手数料無料
仲介から
入居工事まで
ワンストップで対応
経験豊富なスタッフが
スピード感をもって
対応
非公開物件 多数あり!

お問い合わせフォーム