takeofficeなら掲載物件の仲介手数料は無料です

スズヨシビル

住所 東京都荒川区西日暮里5-26-8
交通 JR山手線西日暮里」 徒歩3分
東京メトロ千代田線西日暮里」 徒歩3分
京成本線新三河島」 徒歩8分
竣工 1992年07月 構造 SRC+RC
規模 地上7階 耐震基準 新耐震基準
床構造 フリーアクセス 50mm 空調設備 個別空調
天井高 - 基準階面積 129.84坪(429.22m2)
コンセント容量 - 施工会社
坪面積 用途 賃料 坪単価 共益費 入居可能日
5 52.25坪 事務所 ¥627,000(税込 ¥689,700) ¥12,000(税込 ¥13,200) 含む 2026年2月初旬
3 129.84坪 事務所 ¥1,558,080(税込 ¥1,713,888) ¥12,000(税込 ¥13,200) 含む 2026年3月初旬
スズヨシビル 外観

外観

  • スズヨシビル エントランス写真

    エントランス

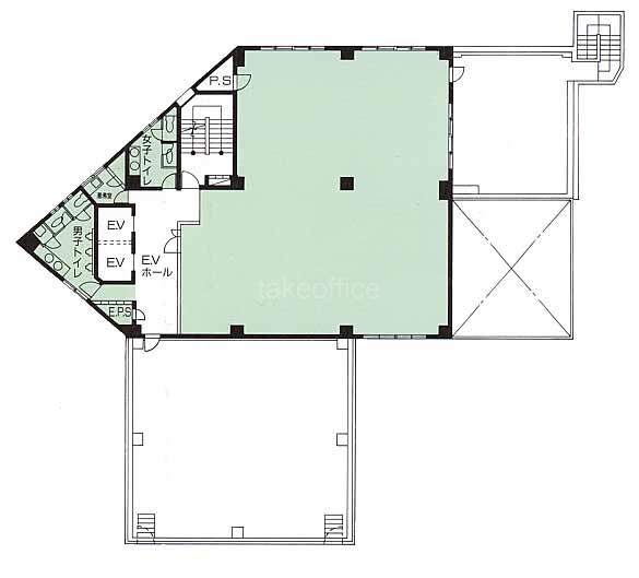
  • 基準階(2~5F)

    基準階(2~5F)

  • 1F

    1F

  • 6F

    6F

  • 7F

    7F

  • 4F5F

    4F5F

内見やお見積りなどの各種お問い合わせ

全物件
仲介手数料無料
仲介から
入居工事まで
ワンストップで対応
経験豊富なスタッフが
スピード感をもって
対応

※「ご相談」と記載されている項目について
賃貸人が募集賃料条件を守秘義務の関係から明示していない場合に、【ご相談】と記載しております。
フリーレント(賃料免除)期間、使用面積、入居時期、テナント様の与信などによりご提示できる条件が若干変化いたします。
お手数ですが、詳細につきましては、上記よりお問い合わせください。

非公開物件 多数あり!

お問い合わせフォーム