takeofficeなら掲載物件の仲介手数料は無料です

富士商工ビル

住所 東京都練馬区中村北1-1-4
交通 池袋線練馬」 徒歩4分
都営大江戸線豊島園」 徒歩8分
竣工 1973年10月 構造 RC
規模 地上5階, 地下1階 耐震基準 旧耐震基準
床構造 - 空調設備 個別空調
天井高 2400mm 基準階面積 20.32坪(67.17m2)
コンセント容量 - 施工会社

最新の募集状況や類似物件については、
こちらにお問い合わせください。

富士商工ビル 外観

外観

  • 富士商工ビル エントランス写真

    エントランス

  • 1F

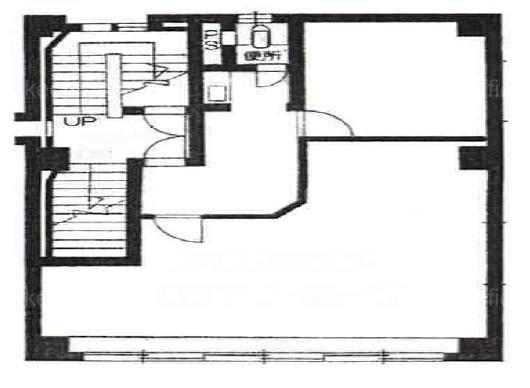
    1F

  • 2F

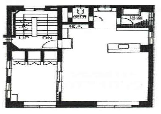
    2F

  • 3F

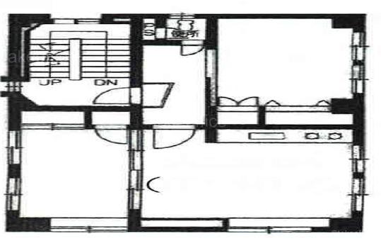
    3F

  • 4F

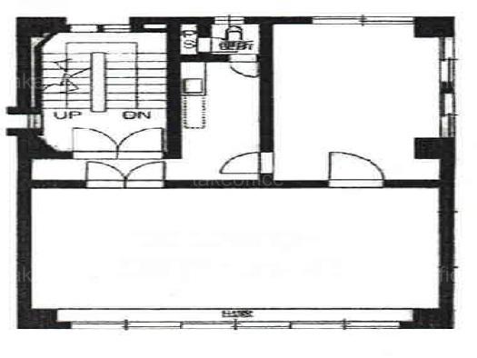
    4F

  • 5F

    5F

  • B1F

    B1F

内見やお見積りなどの各種お問い合わせ

全物件
仲介手数料無料
仲介から
入居工事まで
ワンストップで対応
経験豊富なスタッフが
スピード感をもって
対応
非公開物件 多数あり!

お問い合わせフォーム