takeofficeなら掲載物件の仲介手数料は無料です

綾瀬MTビル

住所 東京都足立区綾瀬4-7-1
交通 JR常磐線綾瀬」 徒歩1分
東京メトロ千代田線綾瀬」 徒歩1分
竣工 1989年05月 構造 -
規模 地上7階 耐震基準 新耐震基準
床構造 - 空調設備 -
天井高 - 基準階面積 25.43坪(84.07m2)
コンセント容量 - 施工会社

最新の募集状況や類似物件については、
こちらにお問い合わせください。

NOW PRINTING

外観

  • NOW PRINTING

    エントランス

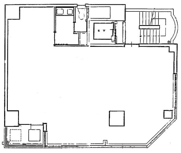
  • 基準階(3~6F)

    基準階(3~6F)

内見やお見積りなどの各種お問い合わせ

全物件
仲介手数料無料
仲介から
入居工事まで
ワンストップで対応
経験豊富なスタッフが
スピード感をもって
対応
非公開物件 多数あり!

お問い合わせフォーム