takeofficeなら掲載物件の仲介手数料は無料です

第2染野ビル

住所 東京都足立区千住2-37
交通 東京メトロ千代田線北千住」 徒歩3分
JR常磐線北千住」 徒歩4分
竣工 1994年 構造 鉄骨造
規模 地上5階, 地下0階 耐震基準 新耐震基準
床構造 - 空調設備 個別空調
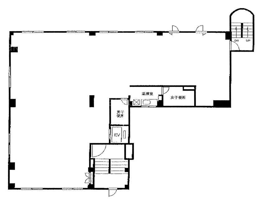
天井高 - 基準階面積 73.82坪(244.03m2)
コンセント容量 - 施工会社

最新の募集状況や類似物件については、
こちらにお問い合わせください。

第2染野ビル 外観

外観

  • NOW PRINTING

    エントランス

  • 2F

    2F

内見やお見積りなどの各種お問い合わせ

全物件
仲介手数料無料
仲介から
入居工事まで
ワンストップで対応
経験豊富なスタッフが
スピード感をもって
対応
非公開物件 多数あり!

お問い合わせフォーム