takeofficeなら掲載物件の仲介手数料は無料です

朝日生命北千住ビル

住所 東京都足立区千住仲町40-11
交通 東京メトロ千代田線北千住」 徒歩2分
JR常磐線北千住」 徒歩5分
伊勢崎線北千住」 徒歩5分
竣工 1989年12月 構造 SRC
規模 地上7階, 地下0階 耐震基準 新耐震基準
床構造 - 空調設備 個別空調
天井高 2500mm 基準階面積 59坪(195m2)
コンセント容量 - 施工会社

最新の募集状況や類似物件については、
こちらにお問い合わせください。

朝日生命北千住ビル 外観

外観

  • NOW PRINTING

    エントランス

  • 基準階(2~5F)

    基準階(2~5F)

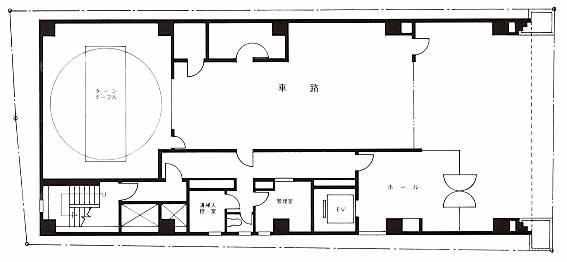
  • 1F

    1F

  • 6~7F

    6~7F

内見やお見積りなどの各種お問い合わせ

全物件
仲介手数料無料
仲介から
入居工事まで
ワンストップで対応
経験豊富なスタッフが
スピード感をもって
対応
非公開物件 多数あり!

お問い合わせフォーム