takeofficeなら掲載物件の仲介手数料は無料です

渋沢金町ビル

住所 東京都葛飾区東金町1-23-2
交通 JR常磐線金町」 徒歩1分
竣工 1969年06月 構造 RC
規模 地上6階 耐震基準 新耐震基準
床構造 - 空調設備 個別空調
天井高 2400mm 基準階面積 --
コンセント容量 - 施工会社

最新の募集状況や類似物件については、
こちらにお問い合わせください。

NOW PRINTING

外観

  • NOW PRINTING

    エントランス

  • 基準階(4~5F)

    基準階(4~5F)

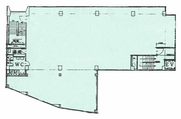
  • 6F

    6F

内見やお見積りなどの各種お問い合わせ

全物件
仲介手数料無料
仲介から
入居工事まで
ワンストップで対応
経験豊富なスタッフが
スピード感をもって
対応
非公開物件 多数あり!

お問い合わせフォーム