takeofficeなら掲載物件の仲介手数料は無料です

大樹生命金町ビル

住所 東京都葛飾区東金町6-6-5
交通 JR常磐線金町」 徒歩9分
竣工 1987年04月 構造 SRC
規模 地上6階, 地下1階 耐震基準 新耐震基準
床構造 - 空調設備 フロア別空調
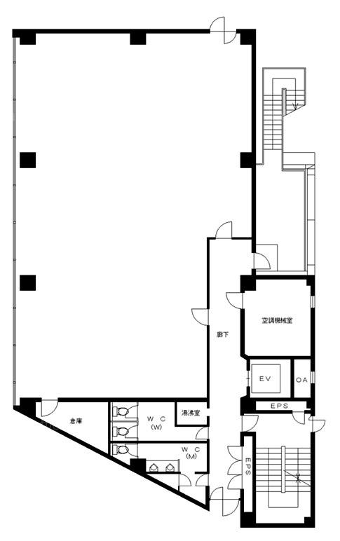
天井高 2500mm 基準階面積 62.92坪(208m2)
コンセント容量 - 施工会社

最新の募集状況や類似物件については、
こちらにお問い合わせください。

大樹生命金町ビル 外観

外観

  • NOW PRINTING

    エントランス

内見やお見積りなどの各種お問い合わせ

全物件
仲介手数料無料
仲介から
入居工事まで
ワンストップで対応
経験豊富なスタッフが
スピード感をもって
対応
非公開物件 多数あり!

お問い合わせフォーム