takeofficeなら掲載物件の仲介手数料は無料です

第2デリカビル

住所 東京都葛飾区新小岩1-48-18
交通 JR総武本線新小岩」 徒歩2分
竣工 1984年04月 構造 -
規模 地上4階, 地下1階 耐震基準 新耐震基準
床構造 - 空調設備 フロア別空調
天井高 2500mm 基準階面積 --
コンセント容量 - 施工会社

最新の募集状況や類似物件については、
こちらにお問い合わせください。

NOW PRINTING

外観

  • NOW PRINTING

    エントランス

  • 基準階(3~7F)

    基準階(3~7F)

  • 1F

    1F

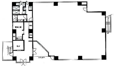
  • 2F

    2F

内見やお見積りなどの各種お問い合わせ

全物件
仲介手数料無料
仲介から
入居工事まで
ワンストップで対応
経験豊富なスタッフが
スピード感をもって
対応
非公開物件 多数あり!

お問い合わせフォーム