takeofficeなら掲載物件の仲介手数料は無料です

京成青戸ビル

住所 東京都葛飾区青戸3-37-15
交通 京成本線青砥」 徒歩1分
押上線京成立石」 徒歩13分
金町線京成高砂」 徒歩17分
竣工 2007年01月 構造 RC
規模 地上7階 耐震基準 新耐震基準
床構造 - 空調設備 -
天井高 - 基準階面積 129.97坪(429.65m2)
コンセント容量 - 施工会社

最新の募集状況や類似物件については、
こちらにお問い合わせください。

NOW PRINTING

外観

  • NOW PRINTING

    エントランス

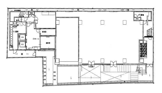
  • 基準階(4~6F)

    基準階(4~6F)

  • 1F

    1F

内見やお見積りなどの各種お問い合わせ

全物件
仲介手数料無料
仲介から
入居工事まで
ワンストップで対応
経験豊富なスタッフが
スピード感をもって
対応
非公開物件 多数あり!

お問い合わせフォーム