takeofficeなら掲載物件の仲介手数料は無料です

葛飾第1ビル

住所 東京都葛飾区青戸3-39-6
交通 京成本線青砥」 徒歩2分
押上線京成立石」 徒歩13分
竣工 1991年11月 構造 鉄骨造
規模 地上6階, 地下1階 耐震基準 新耐震基準
床構造 - 空調設備 個別空調
天井高 2450mm 基準階面積 70坪(234m2)
コンセント容量 - 施工会社

最新の募集状況や類似物件については、
こちらにお問い合わせください。

NOW PRINTING

外観

  • NOW PRINTING

    エントランス

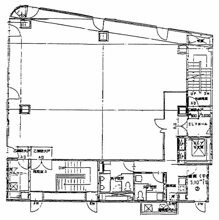
  • 3F

    3F

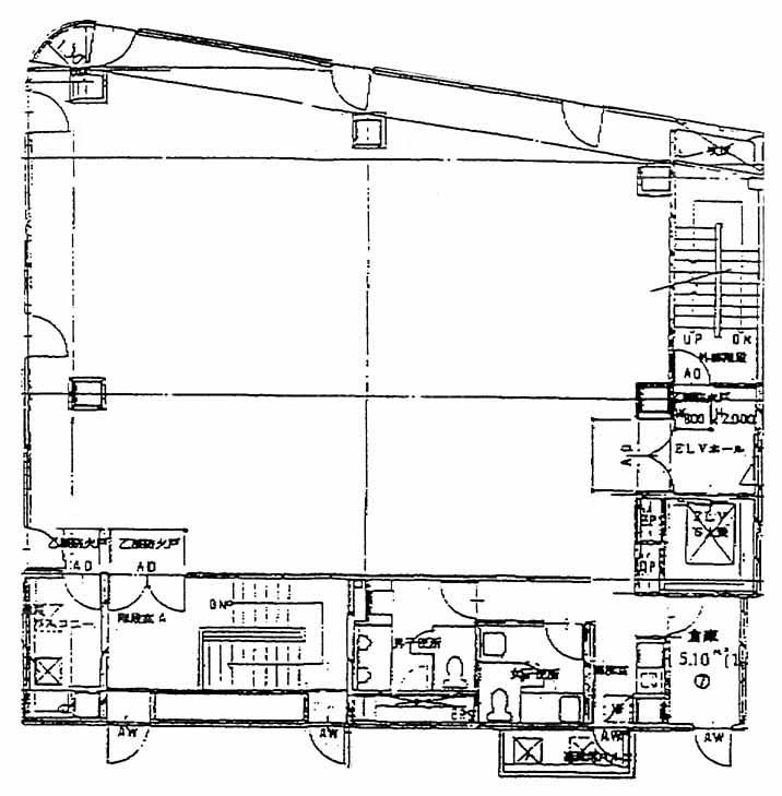
  • 4F

    4F

内見やお見積りなどの各種お問い合わせ

全物件
仲介手数料無料
仲介から
入居工事まで
ワンストップで対応
経験豊富なスタッフが
スピード感をもって
対応
非公開物件 多数あり!

お問い合わせフォーム