takeofficeなら掲載物件の仲介手数料は無料です

ジブラルタ生命小岩ビル

住所 東京都江戸川区西小岩3-31-14
交通 JR総武本線小岩」 徒歩4分
京成本線京成小岩」 徒歩15分
竣工 1999年03月 構造 SRC
規模 地上5階, 地下1階 耐震基準 新耐震基準
床構造 フリーアクセス 空調設備 個別空調
天井高 2800mm 基準階面積 26.04坪(86.08m2)
コンセント容量 - 施工会社

最新の募集状況や類似物件については、
こちらにお問い合わせください。

ジブラルタ生命小岩ビル 外観

外観

  • NOW PRINTING

    エントランス

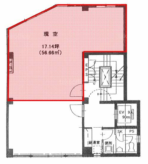
  • 4F

    4F

内見やお見積りなどの各種お問い合わせ

全物件
仲介手数料無料
仲介から
入居工事まで
ワンストップで対応
経験豊富なスタッフが
スピード感をもって
対応
非公開物件 多数あり!

お問い合わせフォーム