takeofficeなら掲載物件の仲介手数料は無料です

NEXTAGE西葛西

住所 東京都江戸川区西葛西5-2-3
交通 東京メトロ東西線西葛西」 徒歩3分
竣工 1993年01月 構造 SRC
規模 地上7階, 地下1階 耐震基準 新耐震基準
床構造 フリーアクセス 50mm 空調設備 -
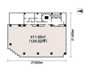
天井高 2700mm 基準階面積 124.53坪(411.66m2)
コンセント容量 - 施工会社

最新の募集状況や類似物件については、
こちらにお問い合わせください。

NEXTAGE西葛西 外観

外観

  • NOW PRINTING

    エントランス

  • 基準階

    基準階

建物パンフレット

建物パンフレットは作成時点のものであり、また計画段階のものも含まれる為、実際とは異なる場合がございます。

内見やお見積りなどの各種お問い合わせ

全物件
仲介手数料無料
仲介から
入居工事まで
ワンストップで対応
経験豊富なスタッフが
スピード感をもって
対応

周辺での似た条件の物件

非公開物件 多数あり!

お問い合わせフォーム