takeofficeなら掲載物件の仲介手数料は無料です

日本生命武蔵野ビル

住所 東京都武蔵野市中町1-16-10
交通 JR総武本線三鷹」 徒歩1分
井の頭線三鷹台」 徒歩1分
竣工 1967年10月 構造 -
規模 地上6階, 地下1階 耐震基準 -
床構造 - 空調設備 個別空調
天井高 2500mm 基準階面積 --
コンセント容量 - 施工会社

最新の募集状況や類似物件については、
こちらにお問い合わせください。

日本生命武蔵野ビル 外観

外観

  • NOW PRINTING

    エントランス

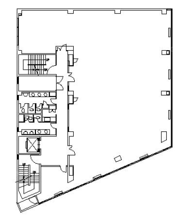
  • 基準階

    基準階

内見やお見積りなどの各種お問い合わせ

全物件
仲介手数料無料
仲介から
入居工事まで
ワンストップで対応
経験豊富なスタッフが
スピード感をもって
対応

周辺での似た条件の物件

非公開物件 多数あり!

お問い合わせフォーム