takeofficeなら掲載物件の仲介手数料は無料です

Jプロポートサイドビル

住所 神奈川県横浜市神奈川区栄町10-35
交通 京浜急行神奈川」 徒歩7分
JR東海道線横浜」 徒歩10分
竣工 2001年01月 構造 RC
規模 地上5階, 地下1階 耐震基準 新耐震基準
床構造 フリーアクセス 50mm 空調設備 個別空調
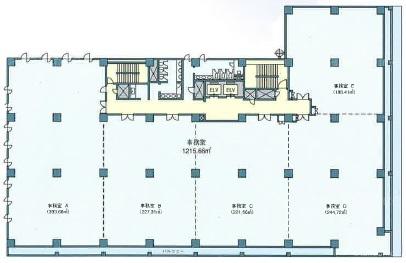
天井高 2700mm 基準階面積 367.74坪(1215.66m2)
コンセント容量 50VA/m2 施工会社
坪面積 用途 賃料 坪単価 共益費 入居可能日
3 100.93坪 事務所 相談 相談 相談
Jプロポートサイドビル 外観

外観

  • NOW PRINTING

    エントランス

  • 基準階(3~5F)

    基準階(3~5F)

  • 1F

    1F

  • 2F

    2F

内見やお見積りなどの各種お問い合わせ

全物件
仲介手数料無料
仲介から
入居工事まで
ワンストップで対応
経験豊富なスタッフが
スピード感をもって
対応

※「ご相談」と記載されている項目について
賃貸人が募集賃料条件を守秘義務の関係から明示していない場合に、【ご相談】と記載しております。
フリーレント(賃料免除)期間、使用面積、入居時期、テナント様の与信などによりご提示できる条件が若干変化いたします。
お手数ですが、詳細につきましては、上記よりお問い合わせください。

周辺での似た条件の物件

非公開物件 多数あり!

お問い合わせフォーム