takeofficeなら掲載物件の仲介手数料は無料です

日土地山下町ビル

住所 神奈川県横浜市中区山下町23-1
交通 みなとみらい線日本大通り」 徒歩3分
JR横浜線関内」 徒歩11分
竣工 2010年07月 構造 SRC+鉄骨造
規模 地上14階, 地下2階 耐震基準 新耐震基準
床構造 フリーアクセス 100mm 空調設備 個別空調
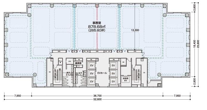
天井高 2800mm 基準階面積 265.6坪(878m2)
コンセント容量 50VA/m2 施工会社

最新の募集状況や類似物件については、
こちらにお問い合わせください。

日土地山下町ビル 外観

外観

  • 日土地山下町ビル エントランス写真

    エントランス

内見やお見積りなどの各種お問い合わせ

全物件
仲介手数料無料
仲介から
入居工事まで
ワンストップで対応
経験豊富なスタッフが
スピード感をもって
対応

周辺での似た条件の物件

非公開物件 多数あり!

お問い合わせフォーム